Top.Mail.Ru

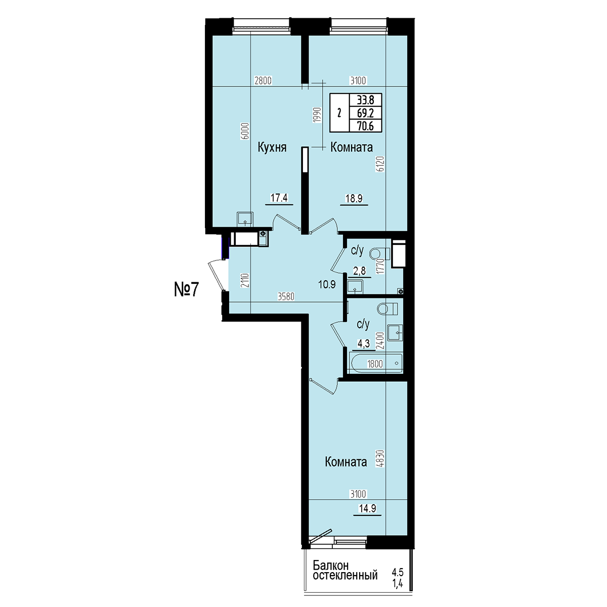
Двухкомнатная №7

2D план

ЖК "ПРАГМА сити", «Парнас», Выборгский район. Дом сдан, корпус 3

Двухкомнатная №7
Базовая цена
16 247 418
Цена за м2
230 133 p
Цена указана за квартиры без отделки и меблировки
площадь 70.6 м2
жилая 33.8 м2
этаж 3/23
потолок 2.73 м
Особенности

раздельный санузел

есть балк/лодж

ТИП ОТДЕЛКИ: без отделки
ТИП ОТДЕЛКИ: без отделки
ПЛОЩАДЬ 70.6 М2
ЖИЛАЯ 33.8 М2
ЭТАЖ 3/23
ПОТОЛОК 2.73 М
Особенности

раздельный санузел

есть балк/лодж

Базовая цена
16 247 418
Цена за м2
230 133 p
Цена указана за квартиры без отделки и меблировки
Варианты отделки

 
Без отделки
В квартире имеются бетонные стены, стяжка на полу, установлены радиаторы
Отделка White Box
Предчистовая отделка, выровнены стены, пол и потолок
Чистовая отделка
Полноценный ремонт квартиры: покрытие пола, стен и потолка отделочными материалами
Показываем готовые квартиры на объектах
Узнайте подробности по телефону
(812) 303-90-03